PRETTY. TASTY. PINK!
NGON IN HO CHI MINH CITY
DAS RESTAURANT IST EIN ANOMYM FINANZIERTES COMMUNITY PROJEKT IN DEM, NACH EINEM KALENDARISCHEN ROTATIONSPRINZIP, STREETFOOD KÖCHE AUF EIGENEN WUNSCH UND ANMELDUNG ZWEI BIS VIER MAL PRO JAHR AUFKOCHEN. HINTERGRUND DER UNTERNEHMUNG IST ES, DEN BEWOHNERN/BESUCHERN DER STADT UNTERSCHIEDLICHE SPEZIALITÄTEN DER ZAHLREICHEN QUARTIERE UND MÄRKTE AUCH STATIONÄR NAHE ZU BRINGEN UND SO EINERSEITS DIE LOKALE, KULINARISCHE VIELFALT ZU UNTERSTREICHEN ALS AUCH DEN KÖCHEN DIE CHANCE AUF KUNDENZUWACHS ZUTEIL WERDEN ZU LASSEN.
DAS PROJEKT WURDE AUF EINEN TESTZEITRAUM VON FÜNF JAHREN AUSGELEGT.
SAND & WOOD
DIE BETON-BAMBUS MÖBLIERUNG WURDE FÜR ZWEI STANDORTE IN DER SÜDLICHEN METROPOLE ENTWICKELT.
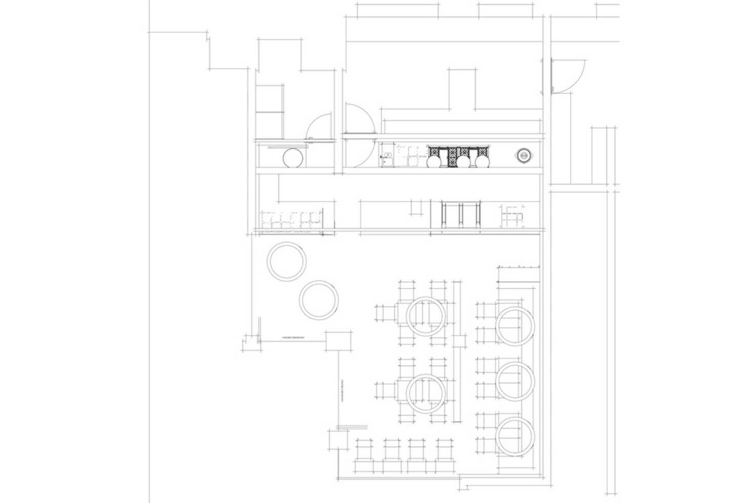
ORGANIC! CHIQUE!
AUF BASIS EINES VORGEGEBENEN GRUNDRISSES SOLLTE EIN ASIA-FRESH-FOOD SUB-BRAND KONZEPTIONIERT, GEPLANT UND GESTALTET, SOWIE BAULICH ANGEPASST ERSTELLT WERDEN. IM ANSCHLUSS AN DIE ABNAHME DES CORPPORATE DESIGNS MIT SIGNET ENTSTAND DIE DESIGNPLANUNG FÜR ZWEI RESTAURANTS. INNERHALB EINES ÄUßERST SCHMALEN ZEITFENSTERS UND IN ENGER ZUSAMMENARBEIT MIT ZWEI BAULEITENDEN ARCHITEKTEN WURDE VOR ORT UMGESETZT.






